【東部中芯】千億產業 賦能高階未來【龍城主軸】商務集聚 引擎城市發展【千萬舊改】品牌房企 助力區域蝶變【立體交通】多維路網 高效暢
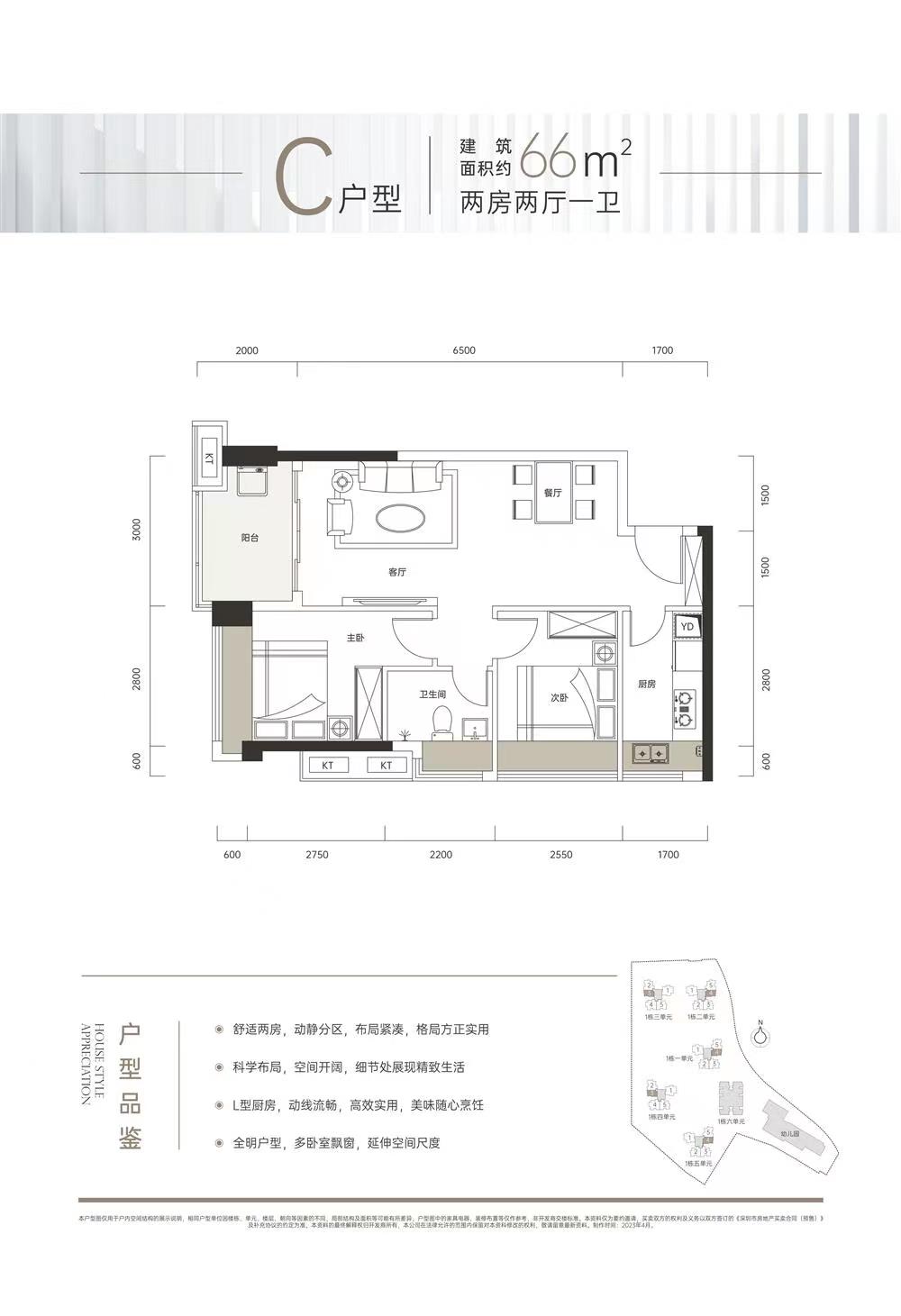
房屋戶型:1室 、2室 、3室 、
住宅類型:精裝修
區域:深圳市龍崗區中心城龍城大道與鹽龍大道交匯處北側
最新開盤:2023-07-28
立即咨詢
24小時咨詢熱線:13267179661
【東部中芯】千億產業 賦能高階未來
【龍城主軸】商務集聚 引擎城市發展
【千萬舊改】品牌房企 助力區域蝶變
【立體交通】多維路網 高效暢行全城
【全齡教育】華附在旁 浸染書香氣息
【醇熟商業】高端商圈 聚領生活主場
【六大公園】公園環伺 暢享鮮氧生活
【空間精研】精算專家 革新空間想象
【奢享低密】低密社區 舒享全齡互動


